Rif: Ferriere
FERRIERE
PIACENZA
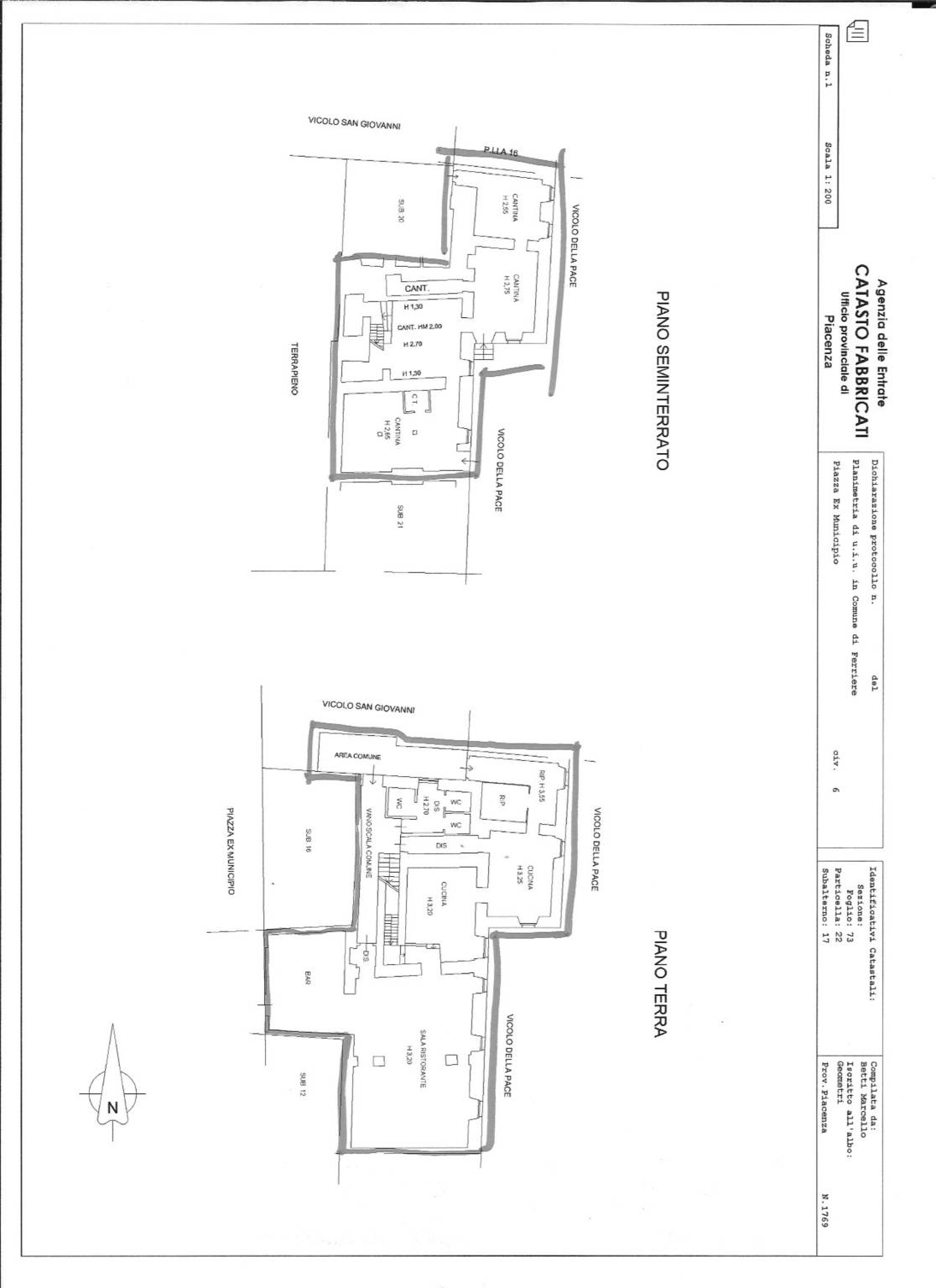
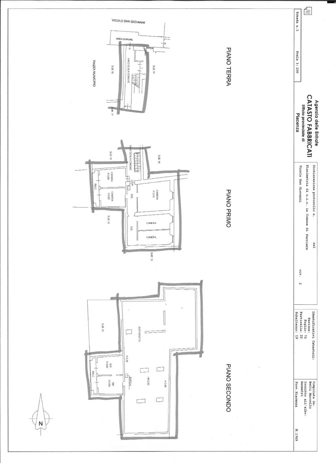
In centro paese di Ferriere (PC), località turistica collocata a circa 600 m di altitudine nell'appennino piacentino, in alta Val Nure si vende questo stabile composto da 2 piani fuori terra oltre sottotetto recuperabile e piano seminterrato. Così composto: al piano terra locale attualmente occupato da ristorante di circa 250 mq oltre spazi uso cantina di cca 100mq nel seminterrato collegato che verrà consegnato interamente libero, al piano primo 2 appartamenti di mq 144 e mq 100, al piano sottotetto, attualmente costituito da uno spazio aperto e al rustico di cca mq 200 con altezza max m 3,00 e minima di m 0,80, in cui si possono ricavare 2 bilocali
Ferriere si trova a circa 40 minuti di auto da Piacenza, in un territorio appenninico che si espande tra l'alta Val Nure e la Val d'Aveto e la vicina Val Trebbia, meta di villeggiatura principalmente estiva con bellissime escursioni sulle cime circostanti, tra le province di Piacenza, Parma e Genova.
L'immobile si presta sia per un uso residenziale e commerciale che ricettivo di tipo bed & breakfast.
La richiesta del blocco è di Eu. 390.000
Ferriere si trova a circa 40 minuti di auto da Piacenza, in un territorio appenninico che si espande tra l'alta Val Nure e la Val d'Aveto e la vicina Val Trebbia, meta di villeggiatura principalmente estiva con bellissime escursioni sulle cime circostanti, tra le province di Piacenza, Parma e Genova.
L'immobile si presta sia per un uso residenziale e commerciale che ricettivo di tipo bed & breakfast.
La richiesta del blocco è di Eu. 390.000
Consistenze
| Descrizione | Superficie | Sup. comm. |
|---|---|---|
| Principali | ||
| Immobile - piano terra | 360 Mq | 360 Mqc |
| Immobile - 1° piano | 144 Mq | 144 Mqc |
| Immobile - 1° piano | 75 Mq | 75 Mqc |
| Mansarda - 2° piano | 250 Mq | 125 Mqc |
| Totale | 704 Mqc | |
